浏览次数575
近日,京东方高端显示材料研究院项目建设用地公示,该项目由烟台京东方材料科技有限公司建设,位于烟台开发区B-9小区,北京中路以东、八角河南街以南。

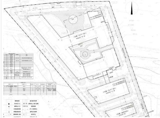
据介绍,项目专注于打造先进材料的研发基地,建成后成为高端材料研产销总部。项目用地面积33344㎡(50亩),用地性质为工业用地(M0),建筑面积54544.21㎡,容积率1.54,绿地率14.85%,建筑密度46.7%,停车位地上77个,地下153个,其中充电车位77个,占比33.48%。
项目地块整体为倒梯形,北侧为1号生产车间,为4层丙类一级厂房,整体呈现倒A形,中间为2号2层丙类二级厂房,最南侧为3号倒班宿舍,为6层民用二级建筑,共有78个双人间,30个单人间,无障碍双人间2间,共计110间,最大服务190人。
资料显示,2024年10月13日,万润股份、德邦科技同日公告与京东方材料、业达经发签署协议,共同出资设立烟台京东方材料科技有限公司,合资公司投资总额为8亿元。
合资公司中京东方材料以货币资金出资4.64亿元,占投资总额的58%;万润股份以货币资金出资1.6亿元,占投资总额的20%;德邦科技以货币资金出资1.44亿元,占投资总额的18%;业达经发以货币资金出资3200万元,占投资总额的4%。
更多精彩资讯,就在夸克显示网(公众号:Quark-display)



需要登录才能发表评论!